8 - 16
Today, India continues to struggle with its contemporary architectural identity and fraught history: from traditional modes of building and the remains of British colonialism, to Le Corbusier and the Modern India Masters. Rather than simply generating a number of buildings—as is currently the case in most IT developments—Threading [IT] takes into consideration the socio-economic changes undergoing in India, as well as the lessons learned from Indian cities, in an attempt to propose a new strategy of urbanism for Gurgaon.
The first phase of the project involved studying two Indian buildings from two different eras: the Kanadariya Mahadev Temple, and the High Court of Justice in Chandigrah, by Le Corbusier. Derived from the temple, I used visual operations to generate a visual plug ‘n’ play, with the court elevation as a basic unit to produce various spatial possibilities.
Visual Explorations.
Areas used as IT parks are carved out by people selling their village property to the government. Bustling villages mark the edges, but no cross-pollination exists between village dwellers and day workers. People working in the IT Manesar sector commute back and forth from their dwellings in Delhi, causing major traffic problems. At night, the IT industry leaves the parks empty—making them transient places until the next new development arrives. Slowly, these villages and life within them are disappearing.
Nothing about the IT Manesar Sector gives a feeling of India; the building could exist anywhere in the world.
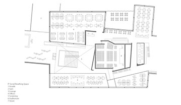
The nature of a typical IT Park is redefined to reconfigure a transient place into a community. Inserting certain layers of urban life such as housing and a school can encourage individuals to create a community. Public and private thread together as various volumes interlock with one another, forming programmatic connections. Wind as a parametric achieves climate control and create social breathing spaces by reinserting the 'street' into several aspects of urban life.
The operations create a ‘new’ type of housing unit that simultaneously generates ‘streets’ that cut through housing and IT. Designed to ensure passive cooling, the units feature an elevated court that overlooks the street while ensuring complete privacy.
The change in elevation allows the street to carry heavier, cooler air, and maintains privacy.
Site Section
Air circulation as Social Breath in a series of expanding scales.
Site Plan
<
>
THREADING [IT]: AN IT PARK IN INDIA
Columbia GSAPP Summer 2011
Studio Critics Mark Rakatansky with Muchan Park