14 - 15
For this advanced studio, we designed an Experimental Art Institute in Greenpoint, NY. We began with a three-week material study to create an isotropic space. The discoveries led to the development of the project throughout the semester. Ideas were continually tested through a rigorous process of making and experimentation.
The video illustrates the process of an 8” cube made of diamond grid metal mesh subjected to the intense sudden weight of a bag of rocks.
The project uses chance and gravity to invent a relationship between pressure and constraint. Applying weight to a volume with chance allows for the making of space, leaving form as a process of discovery.
Spatial Possibilities of Structural Skin, Isotropic Space, Rolling Floorplates and Overhead Space.
Metal mesh gains a different texture from the impact of weight and gravity. These studies also illustrate light and shadow.
Left: a view of the Experimental Art Institute from the East River
Right: Site plan
Night view: looking towards the Plaza, on the corner of Milton & West St.
Model View
Building Section
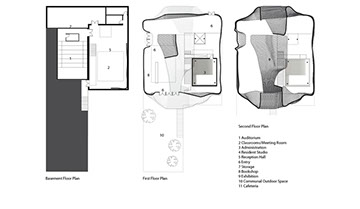
Floor Plans
Floor Plans
Building Section
The view inside resident studios.
View from Rooftop of the Experimental Art Institute towards Manhattan.
<
>
BALANCING ACT
Columbia GSAPP Fall 2011 with Jason Hill
Studio Critics Steven Holl with Garrick Ambrose